Thorsten Reinicke Ing. Büro

Aufmaß, Zeichnung, Flächenberechnung

• Sie möchten Ihr Haus oder Ihre Wohnung umbauen oder verkaufen und Ihnen fehlen die Pläne?
• Sie benötigen Unterlagen für die Finanzierung?
• Sie brauchen eine Wohnflächenberechnung oder für ein Baudarlehen den Bruttorauminhalt?

Ich fertige Ihnen die Unterlagen dafür.

Leistungen

• Bauaufmaß vor Ort
• Grundrisszeichnung oder Zeichnung der Flächen
• Wohnflächenberechnung nach der Wohnflächenverordnung
• Berechnung von Grundflächen und Rauminhalten nach DIN 277
• Ansicht-, Schnitt- und Detailzeichnungen nach Bedarf

Bauaufmaß

vor Ort und von Hand

Die zeichnerische Erfassung eines bestehenden Gebäudes kann in verschiedenen Genauigkeitsstufen erfolgen. Praxisüblich ist ein sogenannt »annähernd wirklichkeitsgetreues Aufmaß« mit geringen Maßun­genauigkeiten von wenigen Zentimetern. Im Hochbau gibt es immer Maßtoleranzen und Ungenauigkeiten, selbst bei einem Neubau. Bei Bedarf können Bauschäden und grobe Verformungen mit dargestellt werden.

Ein »verformungsgetreues Aufmaß« kommt eher im Denkmalschutz oder bei wertvoller Bausubstanz zur Anwendung. Der Aufwand ist deutlich höher. Möglich ist auch ein »Schematisches Aufmaß« ohne hohe Anforderungen an die maßliche Genauigkeit, mit einer lediglich ungefähren Maßstäblichkeit.

Das Aufmaß führe ich vor Ort per Laser und digitaler Erfassung durch. Bausubstanz und Bauzustand können bei Bedarf mit erfaßt und beurteilt werden. Die Daten werden im Büro aufbereitet bzw. gezeichnet.

Referenzen - Auswahl

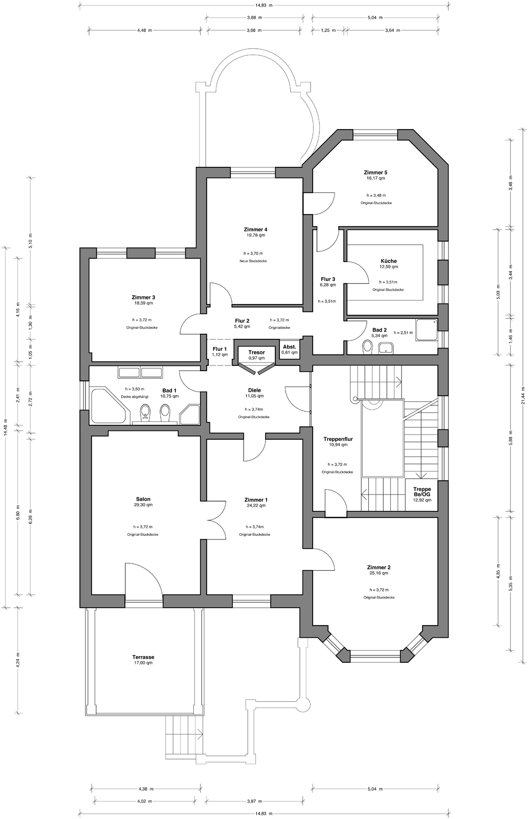
• Mehrfamilien-Villa in Hamburg Uhlenhorst. Aufmaß als Grundlage für den Verkauf.

Grundriss Hochparterre Grundriss 1. Obergeschoss Ansicht

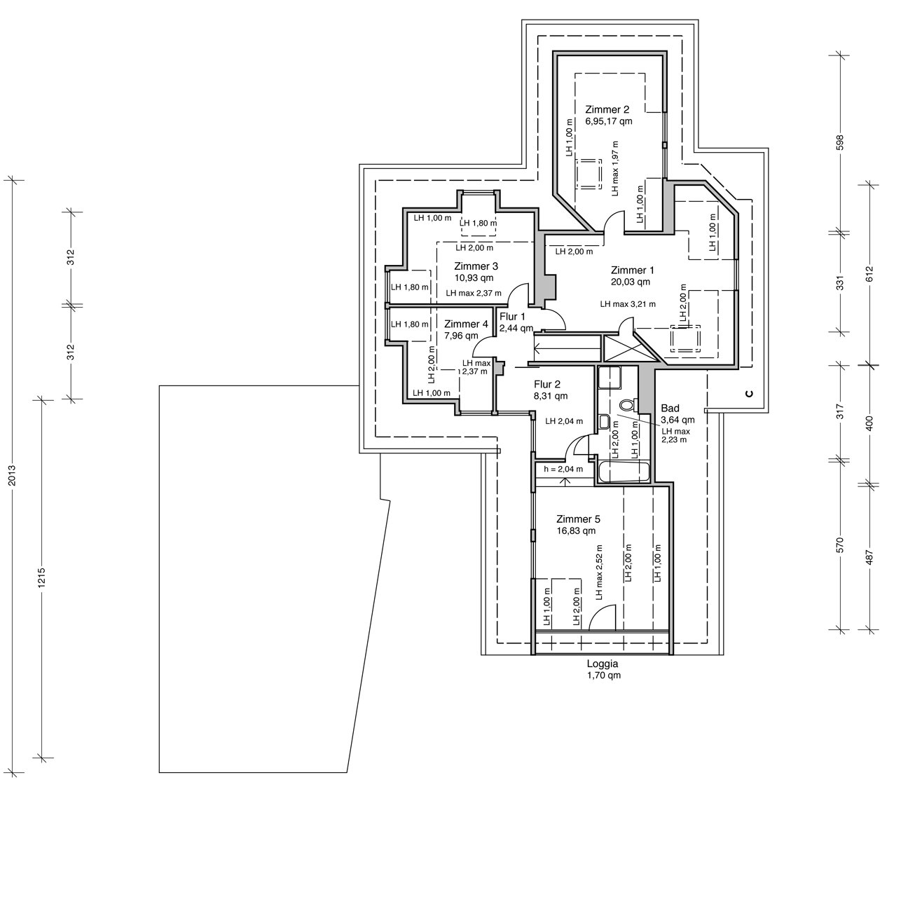
• Flächenaufmaß eines Dachgeschosses

Grundriss Flächen

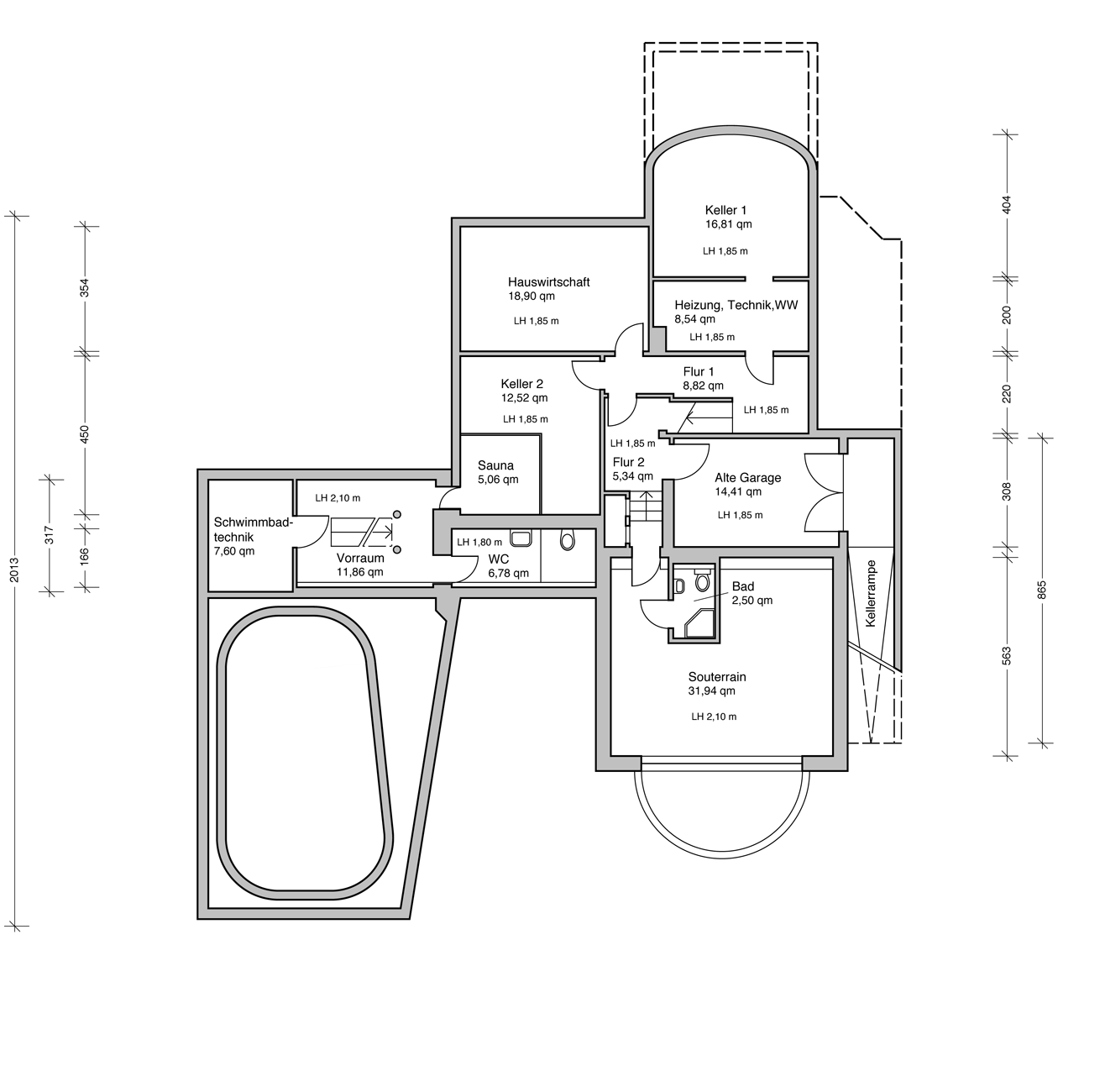
• Mehrfach umgebaute Villa mit Schwimmbad in Hamburg Duvenstedt. Aufmaß als Grundlage für den Verkauf.

Erdgeschoss Dachgeschoss Kellergeschoss

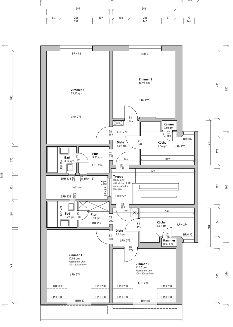
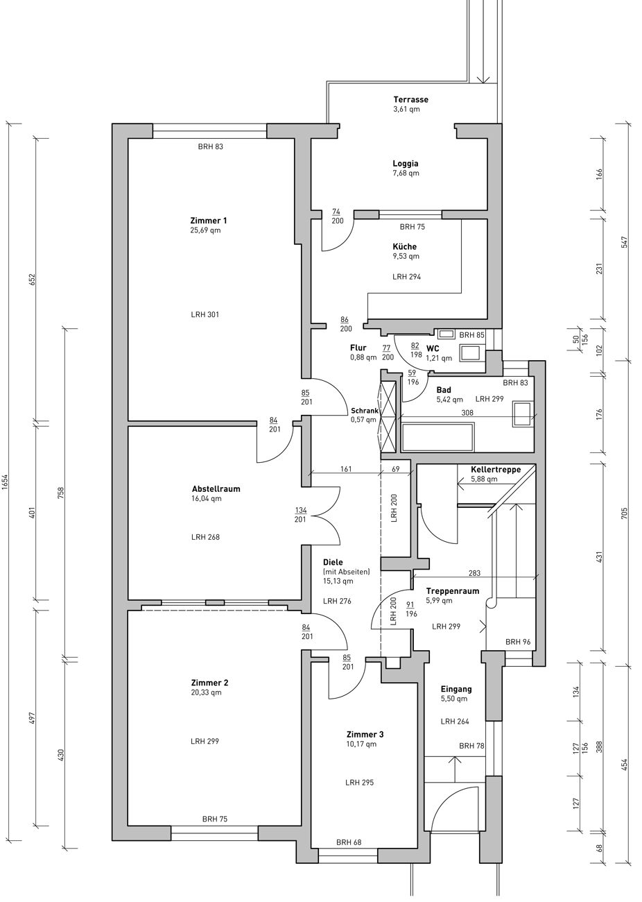
• Mehrfamilienhaus in Hamburg Winterhude. Aufmaß als Grundlage für eine Planung.

Erdgeschoss Erstes Obergeschoss Zweites Obergeschoss

Zeichnungen

Maßstab 1 : 100 / 1 : 50 u.a.

Grundrißzeichnungen mit Vermaßung, je nach Bedarf als Entwurfs-, Genehmigungs- oder Ausführungs­zeichnung mit allen erforder­lichen Angaben in den Maßstäben 1:100, 1:50 oder größer.

Je nach Anforderung können Versorgungs­technik wie Heizung, Sanitär- oder Elektro­installation mit dargestellt werden. Ebenso können die Grundrisse mit Möblierung versehen und anschaulich aufbereitet werden, z.B. wenn es um einen Verkauf gehen soll.

Weiter fertige ich Ansichts­zeichnungen, Quer­schnitte durch Gebäude, oder Detail­zeichnungen von Bauteilen in den Maßstäben 1:20 bis 1:1. Auch können bereits vorhandene Pläne um fehlende Zeichnungen ergänzt werden.

Flächenberechnung

nach der Wohnflächenverordnung oder nach DIN 277

Als Wohnfläche wird die Summe der anrechenbaren Grundflächen der Räume bezeichnet, die zu einer Wohneinheit gehören. Praxisüblich für die Berechnung ist seit 2004 die Wohn­flächen­verordnung (WoFlV). Flächen mit Raumhöhen von 1,50 bis 2,0 Meter werden dabei zur Hälfte, Flächen mit höheren Raumhöhen zu 100%, Flächen mit niedrigeren Raumhöhen gar nicht, sowie Balkone und Loggien zu 25% angerechnet.

Die Raumhöhen und bei Dachschrägen die Höhenlinien (1,5 m und 2,0 m) werden in die Grundrißzeichnungen mit eingetragen. Die Flächenberechnung erfolgt halbautomatisch im CAD-Programm oder bei Bedarf auch von Hand. Das Ergebnis wird anschaulich als Liste oder Tabelle gesondert dargestellt.

Eine andere Möglichkeit ist die Berechnung der Flächen nach DIN 277. Hier geht es um Netto-Raumflächen mit Unterteilung in Nutz-, Funktions- und Verkehrsflächen.

Geht es rein um Flächenberechnungen, genügt ein vereinfachtes Bauaufmaß, bei rein die lichten Grundflächen der Räume vermessen werden, ohne Aufmaß der Fenster- und Türöffnungen u.a..

Sollte bereits ein bemaßter Grundriß vorliegen, so können auch an Hand dessen die Flächen ermittelt werden.

Brutto-Rauminhalt (BRI)

Bauvolumen nach Außenmaßen

Der Brutto-Rauminhalt (BRI) wird auf Grundlage der DIN 277 berechnet. Gemeint ist der Rauminhalt eines Baukörpers, begrenzt durch die äußeren Begrenzungsflächen des Bauwerkes.

Mit dem Brutto-Rauminhalt lässt sich der Preis pro Kubikmeter errechnen - als wichtige Kennzahl eines Bauvorhabens -, und damit wiederum der Gebäudewert (Wertermittlung). Er wird zumeist von Banken zur Berechnung eines Baudarlehens benötigt.

Unterlagen

Die Zeichnungen und Unterlagen erhalten Sie gedruckt, als PDF oder zur Weiterverarbeitung als Standarddatei in DWG oder DXF.

Honorar

Mein Honorar erfolgt per Stundensatz und Abrechnung nach Zeitaufwand.

Kontakt

THORSTEN REINICKE BÜRO
Telefon: 040 - 66 87 58 39
E-Mail: tr@thorsten-reinicke.de

Alle KONTAKT-Daten