Thorsten Reinicke Büro

Planung - Bauantrag

• Sie möchten einen Bauantrag stellen?
• Sie benötigen Pläne für die Ausführung Ihres Vorhabens?
• Sie benötigen Informationen zu den baurechtlichen Anforderungen?

Ich mache die Planung dafür und führe den Bauantrag durch.

Leistungen

• Bauantrag
• Erstellung der Zeichnungen und Unterlagen - Grundrisse, Ansichten, Schnitte
• Nachweis der baurechtlichen Anforderungen - Erschließung, Entwässerung, Rettungsweg u.a.
• Verhandlung mit den Behörden
• Abstimmung mit Planungsbeteiligten: Denkmalschutz, Stadtplanung, Statik, Wärmeschutz, Brandschutz

Bauantrag

Unterlagen für eine Baugenehmigung

Eine Baugenehmigung bedeutet die Genehmigung, bauliche Änderungen vorzunehmen, z.B. die Errichtung eines Neubaus, oder die Änderung oder den Abriss von bestehenden Gebäuden. Sie wird durch die Bauaufsichtsbehörde erteilt.

Einerseits gilt die Eigentumsfreiheit, also auf dem eigenen Grundstück so zu bauen, wie man möchte. Andererseits kann dies in Form von Gefahren oder Konflikten Auswirkung auf die Umgebung haben. Die Freiheit des Bauherren kollidiert mit der Freiheit und den geschützten Interessen Anderer. In Deutschland gilt daher grundsätzlich ein Bauverbot mit Erlaubnis­vorbehalt.

Im Baugenehmigungsverfahren wird nachgewiesen und geprüft, ob ein Vorhaben den öffentlich-rechtlichen Vorschriften entspricht. Ist dies der Fall, dann besteht Anspruch auf Erteilung einer Baugenehmigung, der aus der eingeschränkten Baufreiheit folgt.

Neben den Bauzeichnungen und der Baubeschreibung sind weiter Angaben zur Erschließung (Straße, Wasser, Strom u.a.) und Entwässerung, sowie Nachweise zur Statik, Wärmedämmung, Brandschutz, Schallschutz erforderlich. An der Prüfung können neben der Bauprüfabteilung weitere Behörden beteiligt sein, wie der Denkmalschutz oder die Stadtplanung.

Ich erstelle die erforderlichen Unterlagen und übernehme die Verhandlungen mit den Behörden, sowie nach Bedarf die Abstimmung mit anderen Planungsbeteiligten.

Referenzen - Auswahl

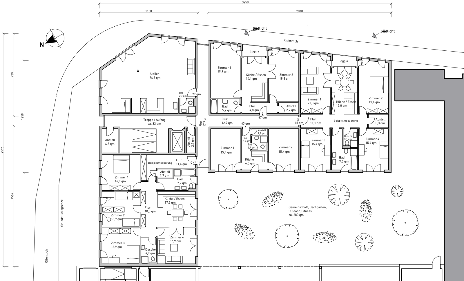
• Planung von Wohnungen auf einem ehemaligen Parkdeck in Hamburg Harburg.

Planung von Wohnungen auf einem ehemaligen Parkdeck - Zwei- bis Vierzimmer-Wohnungen im 2. OG Planung von Wohnungen auf einem ehemaligen Parkdeck - Ansicht

• Brandschutz, 2. Rettungsweg

Zweiter Rettungsweg mit Feuerwehr-Aufstellfläche Zweiter Rettungsweg per dreiteiliger Schiebleiter

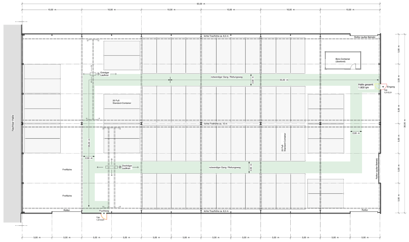
• Fluchtwegkonzept für eine Industriehalle in Hamburg Billbrook.

Industriehalle - Fluchtwegkonzept Grundriss Industriehalle - Ansichten

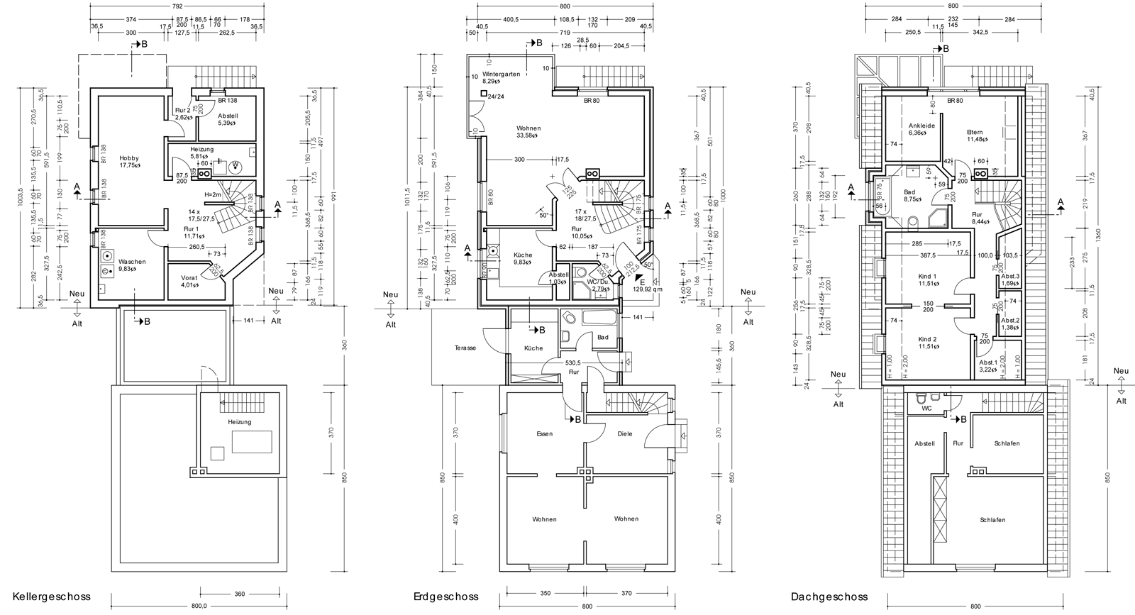
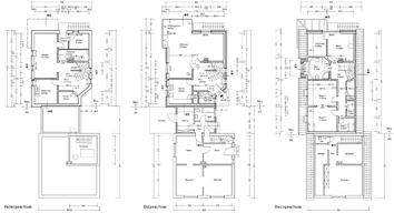
• Neubau eines Einfamlienhauses in Hamburg Duvenstedt.

Einfamilienhaus - Grundrisse Einfamilienhaus - Ansichten Einfamilienhaus - Schnitte

Unterlagen

Die Zeichnungen und Unterlagen erhalten Sie gedruckt oder als PDF oder dxf / dwg - Datei.

Honorar

Mein Honorar erfolgt per Stundensatz und Abrechnung nach Zeitaufwand.

Kontakt

THORSTEN REINICKE BÜRO
Telefon: 040 - 66 87 58 39
E-Mail: tr@thorsten-reinicke.de

Alle KONTAKT-Daten