Thorsten Reinicke Büro

Entwurf - Bauvoranfrage

• Sie möchten eine Bauvoranfrage stellen?
• Sie möchten neu bauen oder umbauen und benötigen einen Entwurf?
• Sie möchten wissen, ob Sie Ihr Vorhaben umsetzen können?

Ich berate Sie umfassend und führe die Bauvoranfrage durch.

Leistungen

• Bauvoranfrage
• Beratung zur Umsetzung Ihrer Vorstellungen
• Grundriss- und Entwurfs-Optimierung
• Vorplanung in Abstimmung mit den Behörden
• Formulierung des konkreten Anliegens

Voranfrage

Unterlagen für einen Bauvorbescheid

Ein Bauvorbescheid bezeichnet im öffentlichen Baurecht eine vor Einreichung eines Bauantrags beantragte verbindliche Entscheidung der Bau­genehmigungs­behörde, z.B. ob ein Vorhaben grundsätzlich genehmigungsfähig ist. Über eine Bauvoranfrage können einzelne Fragen vorab geklärt werden, über die im Baugenehmigungs­verfahren zu entscheiden wäre. Welche Unterlagen hierfür jeweils erforderlich sind, bleibt der Abstimmung mit den Baubehörden vorbehalten. Im allgemeinen sind das Grundrisse, Ansichten und eine Baubeschreibung u.a.. Es muß erkennbar sein, worum es gehen soll.

Ich erstelle die erforderlichen Unterlagen und übernehme die Verhandlungen mit den Behörden.

Referenzen - Auswahl

• Aufstockung von Wohnungen auf einem ehemaligen Parkdeck.

Grundriss-Schema - Erschließung Volumenmodell Sonnenstudie

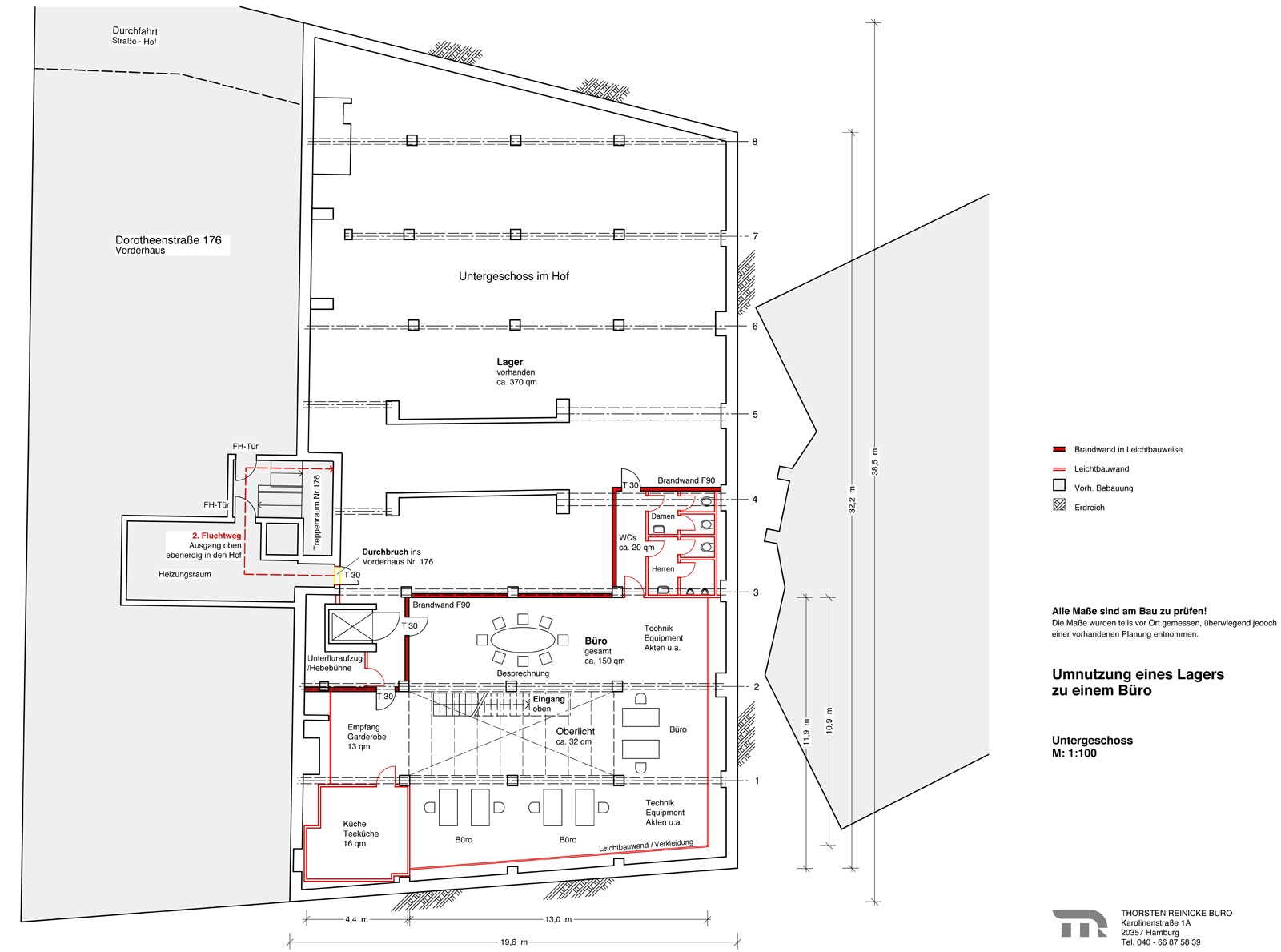
• Voranfragen

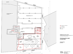
Voranfrage für ein Büro in einem Lagerraum Voranfrage für die Nutzungsänderung einer Liegenschaft

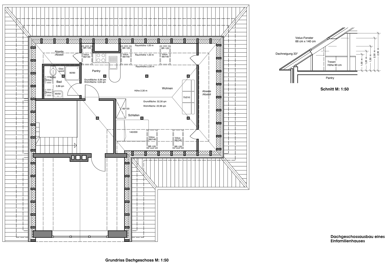
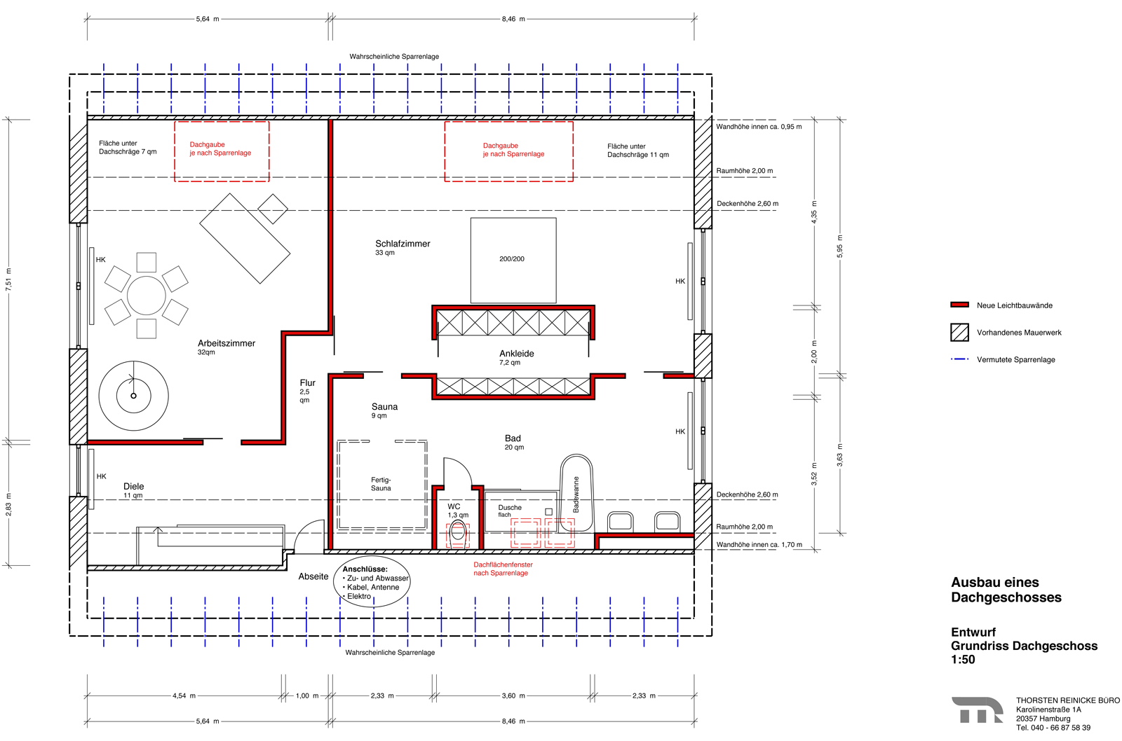
• Ausbau von Dachgeschossen

Entwurf für den Ausbau eines Dachgeschosses. Entwurf für den Ausbau eines Dachgeschosses.

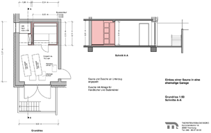
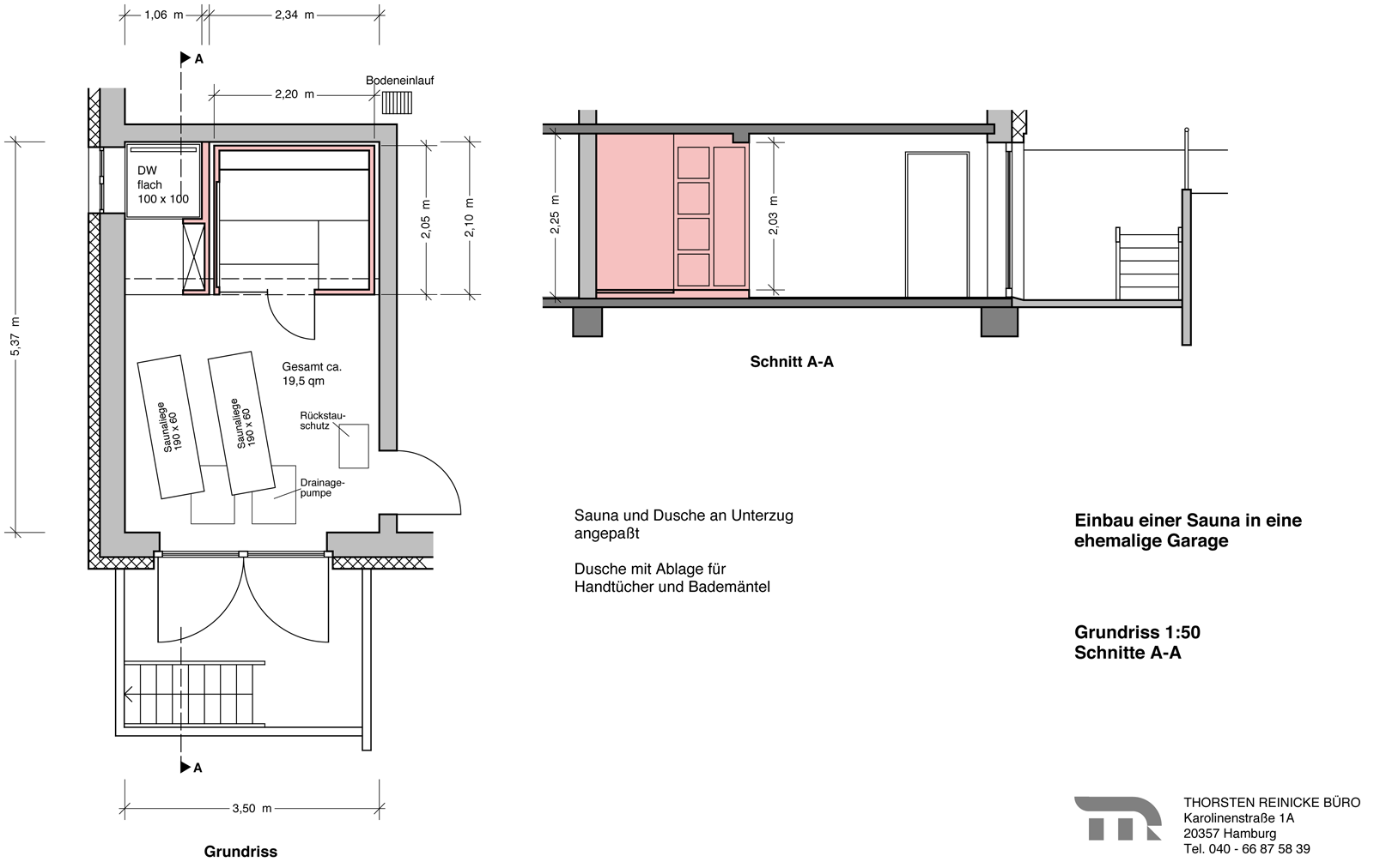
• Einbau einer Sauna

Entwurf für eine Sauna in einer ehemaligen Garage Fliesenplan (Fliesen ca. 120 x 120 cm)

Unterlagen

Die Zeichnungen und Unterlagen erhalten Sie gedruckt oder als PDF oder dxf / dwg - Datei.

Honorar

Mein Honorar erfolgt per Stundensatz und Abrechnung nach Zeitaufwand.

Kontakt

THORSTEN REINICKE BÜRO
Telefon: 040 - 66 87 58 39
E-Mail: tr@thorsten-reinicke.de

Alle KONTAKT-Daten